| Pression d'Air | |||||
| Voltage |
|
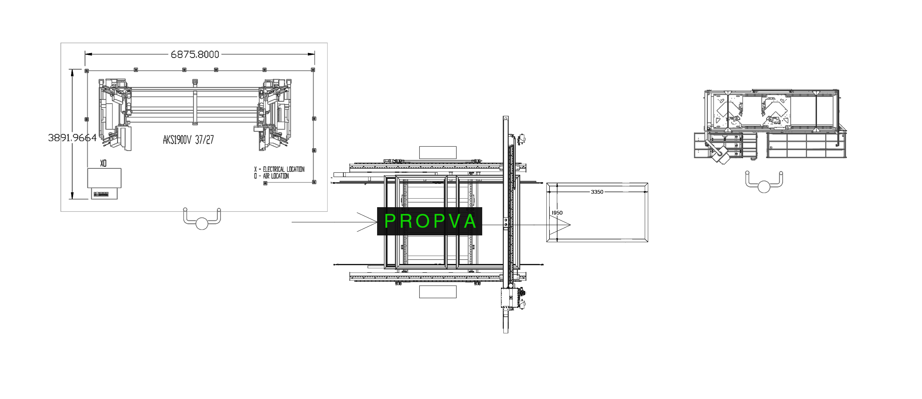
Son perceur principal est capable d’accepter deux outils différents et de pivoter sur 360 degrés, permettant d’effectuer des perçages sur les 4 côtés du carré soudé, à l’intérieur comme à l’extérieur.

Option pour travailler en double zone en alternance pour accepter 2 volets.

Fabriqué avec des composantes nord-américaine et système de contrôle par Protomach GML.
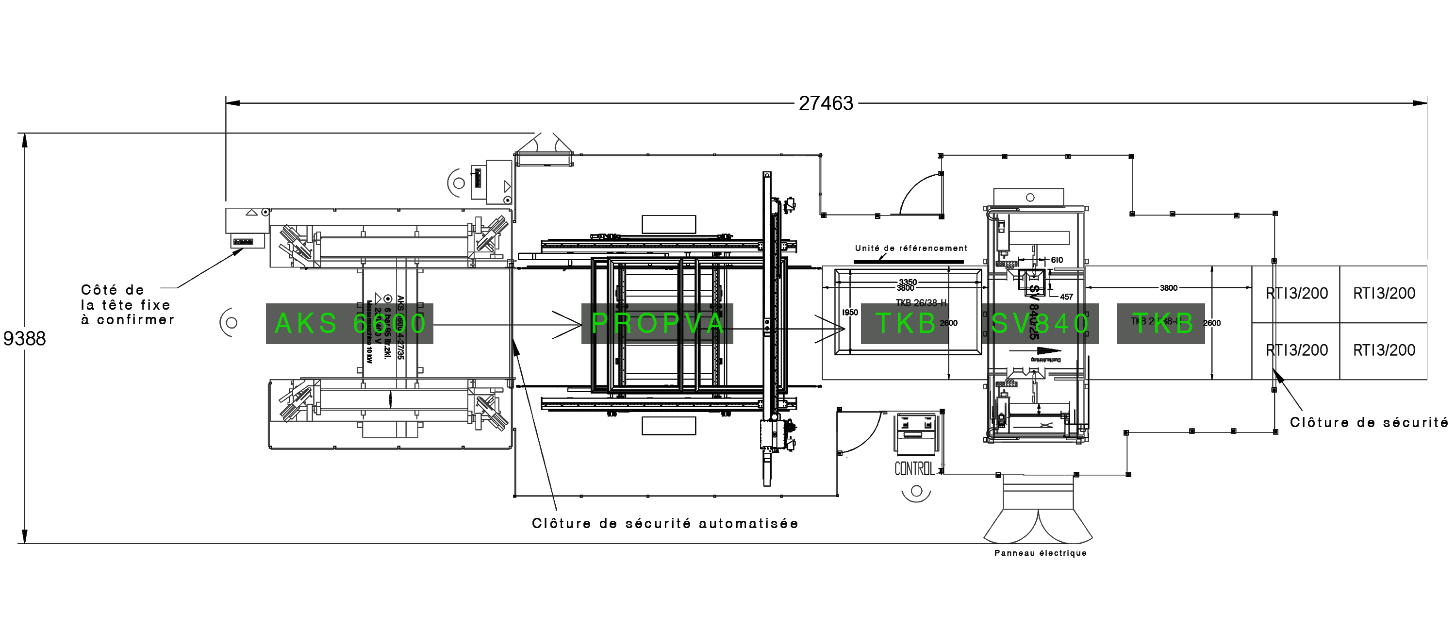
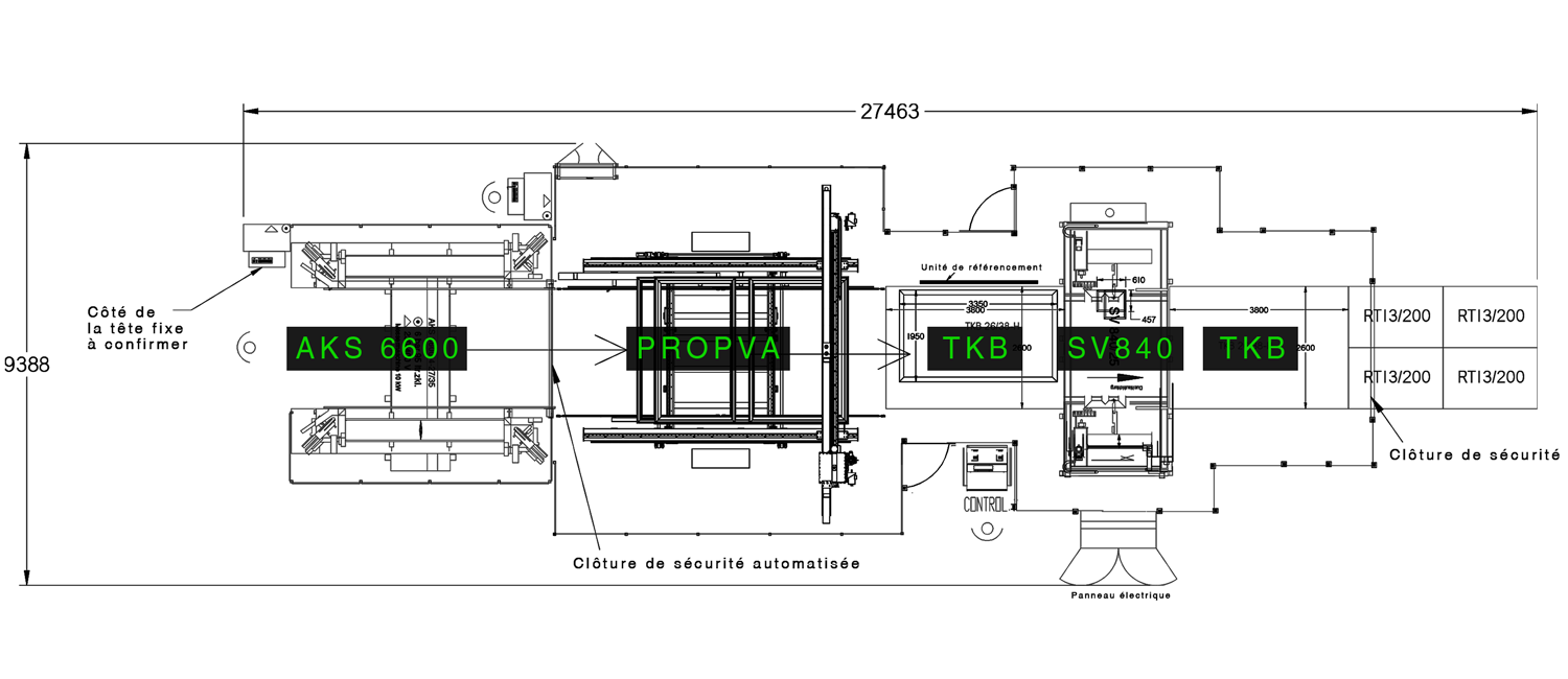
Présenté ci-dessous intégré dans une ligne automatisée URBAN.

Conçue pour s’insérer entre la soudeuse et un nettoyeur de coins, la PROPVA peut aussi être utilisé en mode autonome. Présenté ci-dessous avec une soudeuse verticale 4 têtes et un nettoyeur de coin 2 têtes URBAN.

Capable d’accepter des pièces de 3000mm de large sur 4000mm de long, avec une hauteur maximale de
Un serrage contrôlé aux quatre coins permet de tenir solidement le profilé sans le déformer.
Hauteur maximale (théorique) d’environ 300mm (à confirmer)
Options non incluses (Prix sur demande)
PROPVA à partir de la minute 2:00